Foto's (117)
Plattegronden & Detailtekeningen (7)
Volledige Horeca Transformatie: Kwaliteitsrenovatie op het Iconische Dam Square
Bij TipTop Vakmannen B.V., uw expert in complexe totaalrenovaties in Amsterdam, hebben we met trots een volledige transformatie van een horecagelegenheid op de iconische Dam afgerond. Dit project op een A-locatie in het centrum bewijst onze capaciteit om complete sleutelklare turn-key oplossingen te leveren, van concept tot oplevering.
Van Concept tot Oplevering: De All-in-One Aanpak
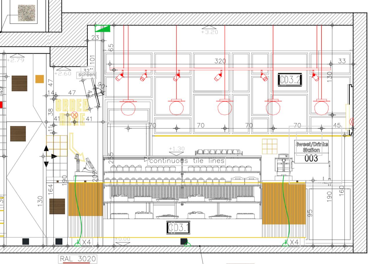
De opdracht voor dit restaurant was een volledige casco-renovatie en herinrichting. Ons team van architecten en tekenaars verzorgde het complete bouwtechnische ontwerp en de bouwtekeningen, waarbij we het design optimaliseerden voor zowel esthetiek als operationele efficiëntie.
De werkzaamheden omvatten zowel grove bouw als de meest strakke afwerking:
Constructieve en Grovere Bouwwerkzaamheden: De indeling van het pand is structureel aangepast om een optimale doorstroom te creëren voor personeel en gasten.
Installatietechniek: We hebben de complete elektrotechnische installatie vernieuwd en een geavanceerd HVAC-systeem (verwarming, ventilatie en airconditioning) geïnstalleerd, cruciaal voor een comfortabel binnenklimaat en de afvoer van kookdampen. Brandveiligheid en -detectie zijn volgens de strengste voorschriften geïntegreerd.
Hoogwaardige Afwerking en Duurzaam Design
De focus lag op een duurzaam, modern en comfortabel interieur. De keuken is voorzien van maatwerk horecakeukens met hygiënische afwerkingen. In de gastenruimte zijn de volgende elementen gerealiseerd:
Oppervlaktebehandeling: Alle wanden zijn strak gestuct en vakkundig geschilderd.
Vloeren en Tegelwerk: Er is hoogwaardig tegelwerk en een duurzame, slijtvaste vloer aangebracht, perfect voor intensief horecagebruik.
Verlichting en Comfort: De gestucte verlichting (inbouwspots) creëert een warme sfeer, terwijl de comfortabele zitplaatsen de gastervaring maximaliseren. Zelfs de sanitaire ruimtes zijn getransformeerd met moderne WC’s en luxe, duurzame materialen.
Dit project aan de Dam is een schoolvoorbeeld van hoe TipTop Vakmannen BV in staat is om de complexiteit van een horeca project in Amsterdam te beheersen, resulterend in een strak, functioneel en gebruiksklaar restaurant dat voldoet aan alle moderne eisen en regelgeving.
Op Aannemer Amsterdam: Complexe Horeca Renovatie aan de Dam
Bij TipTop Vakmannen B.V., dé toonaangevende aannemer in Amsterdam voor complexe projecten, zijn wij trots op de succesvolle oplevering van een volledige restaurant renovatie op de prestigieuze Dam. Dit ambitieuze project illustreert perfect hoe ons team bouwtechnisch inzicht combineert met hoogwaardig design en strak projectmanagement.
Projectmanagement en Bouwkundige Uitdagingen
Het renoveren van een horecagelegenheid op een A-locatie in het centrum van Amsterdam brengt unieke logistieke en bouwkundige uitdagingen met zich mee. Als hoofdaannemer hebben wij het gehele traject begeleid: van de eerste bouwtekeningen en vergunningsaanvragen tot de uiteindelijke schone oplevering.
Onze werkzaamheden behelsden een diepgaande verbouwing en herinrichting. Dit omvatte sloopwerkzaamhedengevolgd door de opbouw van nieuwe binnenwanden en dragende constructies. Alle elektrische en sanitaire installaties zijn compleet vernieuwd.
Focus op Functionaliteit, Sfeer en Veiligheid
Cruciaal voor dit horecapand was de integratie van geavanceerde techniek onder een perfecte afwerking.
Interieur en Design: De horecaruimte is voorzien van strak stucwerk op muren en plafonds, afgewerkt met professioneel schilderwerk. Wij realiseerden duurzame, gemakkelijk te onderhouden vloeren en hoogwaardig betegelde wanden in de natte en operationele ruimtes. De zitplaatsen zijn niet alleen comfortabel, maar ook ontworpen voor maximale capaciteit en duurzaamheid.
Keuken en Techniek: De bedrijfsgereedheid van de keuken was prioriteit. Wij installeerden nieuwe keukenblokken en -systemen, plus moderne, energiezuinige elektra. Essentieel was de aanleg van professionele ventilatiesystemen en airconditioning (HVAC) voor een optimaal binnenklimaat.
Veiligheid: Wij garanderen dat het pand volledig voldoet aan de geldende brandveiligheidseisen en horeca-richtlijnen, van noodverlichting tot uitgangen.
De transformatie van dit restaurant aan de Dam staat symbool voor de kwaliteit en betrouwbaarheid die u van TipTop Vakmannen B.V. mag verwachten. Zoekt u een ervaren aannemer voor uw horeca renovatie in Amsterdam die zowel het design als de complexe bouw verzorgt? Neem dan contact met ons op voor een vrijblijvend adviesgesprek.
Ervoor
Erna
Project details
DATUM
Oktober 2025
CLIENT
Prive
TYPE
Restaurant
Zijn er nog vragen of wens je meer informatie over onze diensten?
Onze diensten
Waarom Tiptop
- Betrouwbaar
- Duurzame investering
- Geen gebreken
- Volgens NEN 1010 eisen
- Vrijblijvende offerte
100% aanbevolen door onze klanten
- 7 reviews op
- Het laatste verzoek was twee uur geleden
- Vandaag zijn er al meerdere offertes aangevraagd
- Meer dan 100 anderen zijn u al voorgegaan
- De gegevens in uw offerteaanvraag zijn beveiligd met SSL
Wilt u liever direct een medewerker spreken?

Cafer Bektas
Direct bereibaar binnen
werkdagen van 09 tot 19:00
- Het laatste verzoek was 40 minuten geleden
- Vandaag waren er al 7 offertes aangevraagd
- Meer dan 100 anderen zijn u al voorgegaan
- De gegevens in uw offerteaanvraag zijn beveiligd met SSL
100% aanbevolen door onze klanten
- 34 reviews op
Reviews
Eerlijke feedback van onze klanten
5,0 13 reviews
Ons betrouwbare partners
Overtuigd?
Neem vandaag nog contact met ons op voor een vrijblijvende offerte en persoonlijk advies op maat
- Opgeleide vakmannen
- Certificering
- Schone oplevering
5,0 13 reviews















































































































